
1 / 2
$286,799
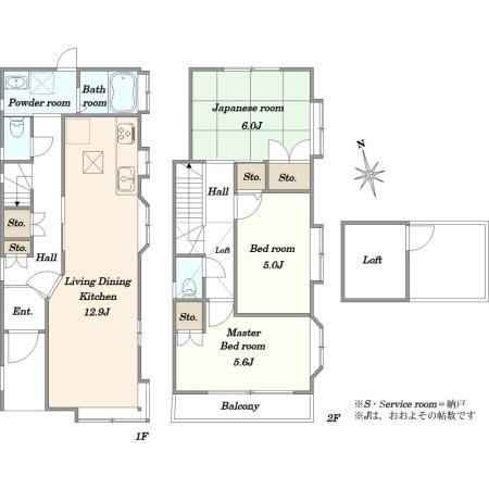
4,580万円Recently Renovated 3LDK House Near Shirakawa Station
Layout
3LDK
Building Area
75.7 m²
815 sq ft
Land Area
74.1 m²
22.4 tsubo
Year Built
1993
Structure
Wood-frame, 2 stories
Nearest Station
Shirakawa
11 min walk
Location
Rokkakubashi 6, Kanagawa Ward, Yokohama City, Kanagawa
kanagawa
Detached House2 floors
Listed Feb 26, 2026·Updated Apr 6, 2026
Description
This newly renovated 3LDK detached house, built in 1993, is conveniently located just 11 minutes from Shirakawa Station. With a building area of 75.68 sqm and a lot size of 74.12 sqm, it features parking for two cars and a bright interior in a quiet neighborhood. Enjoy the benefits of a system kitchen and easy access to nearby schools and amenities.
Features
Parking for 2 carsInterior renovationSystem kitchenBathroom dryerGood sunlightSouth-facing roadQuiet residential areaRoad over 6m wideJapanese roomThree-sided lightingTwo toilets2 storiesFlooring replacementHeated toilet seatWindow in bathroomUrban suburbGood ventilationCity gasElementary school within 10 minutesRooftopDishwasherWater purifier
Interested in this property?
I'll personally help you navigate the purchase process. Fill out the form below and I'll get back to you within 48 hours.
