
1 / 5
$625,546
9,980万円Luxury 5LDK Home with Panoramic Views in Nishinomiya
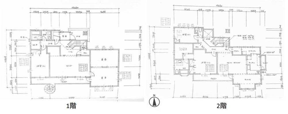
Layout
5LDK+3S(納戸)
Building Area
226.4 m²
2,437 sq ft
Land Area
463.1 m²
140.1 tsubo
Year Built
2000
Structure
Wood-frame, 2 stories
Nearest Station
Koyoen
28 min walk
Location
Kendetani-cho, Nishinomiya City, Hyogo
hyogo
Detached House2 floors
Listed Feb 15, 2026·Updated Apr 4, 2026
Description
This exquisite 5LDK detached house, built in 2000, features a generous 226.41 sqm of living space on a vast 463.07 sqm lot. With stunning panoramic views of Nishinomiya, this custom-built home offers ample parking for three vehicles and is located in a quiet neighborhood. Enjoy outdoor living with multiple balconies and a terrace, perfect for entertaining.
Features
ParkingLarge plotSystem kitchenQuiet neighborhoodGardenMultiple balconiesPanoramic views
Interested in this property?
I'll personally help you navigate the purchase process. Fill out the form below and I'll get back to you within 48 hours.
