
1 / 5
$49,124
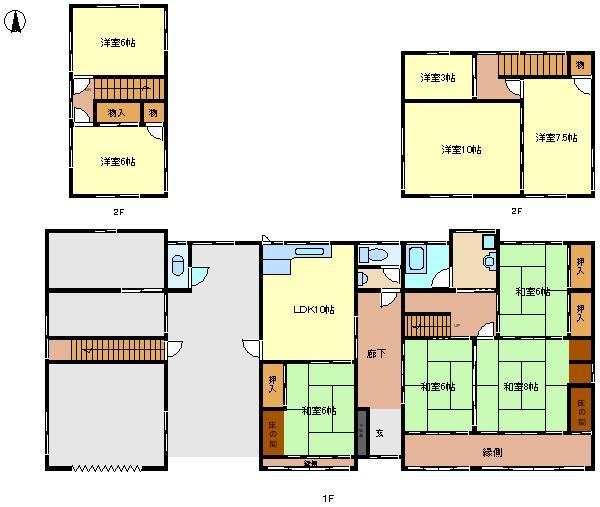
780万円6LDK House with Storage in Ueda
Layout
6LDK+S(納戸)
Building Area
166.1 m²
1,788 sq ft
Land Area
804 m²
243.2 tsubo
Year Built
1990
Structure
Wood-frame, 2 stories
Nearest Station
JR Himeji Line 'Inshou'
53 min walk
Location
Ueda, Tsuyama City, Okayama
okayama
Detached House2 floors
Listed Feb 16, 2026·Updated Apr 9, 2026
Description
This 6LDK house in Ueda features additional storage with a warehouse and two western-style rooms in the detached unit. Built in 1990, the property is spacious with a generous land area, making it suitable for families looking for extra space.
Features
Parking for 3 or more carsImmediate delivery availableMountain viewGardenTwo toilets2 storiesUnderfloor storageStorage room
Interested in this property?
I'll personally help you navigate the purchase process. Fill out the form below and I'll get back to you within 48 hours.
