
1 / 5
$130,624
2,080万円Charming 4K House Near Baba Park
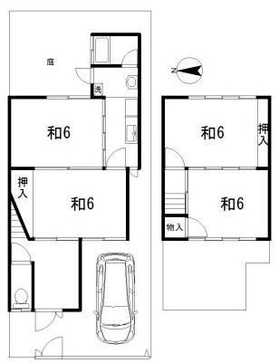
Layout
4K
Building Area
60.7 m²
654 sq ft
Land Area
68.2 m²
20.6 tsubo
Year Built
1970
Structure
Wood-frame, 2 stories
Nearest Station
Imadegawa
16 min walk
Location
Jodoji Shimobaba-cho, Sakyo City, Kyoto
kyoto
Detached House2 floors
Listed Feb 18, 2026·Updated Apr 8, 2026
Description
This delightful 4K house, built in 1970, offers 60.74 sqm of living space on a 68.24 sqm lot. With a convenient location near Baba Park, it features excellent sunlight and ventilation. This home is perfect for families looking for a peaceful and comfortable environment.
Features
2 storiesCity gasFlat land
Interested in this property?
I'll personally help you navigate the purchase process. Fill out the form below and I'll get back to you within 48 hours.
